Das Quartierzentrum Schütze mit Café (Di, Mi, Do) ist ein beliebter Treffpunkt im Kreis 5. Die unterschiedlich gestalteten Räume können für Kurse, Veranstaltungen, Workshops, Sitzungen, Familienfeiern und vieles mehr gemietet werden.
Raum für Feste, Partys, Bewegungsangebote, Konzerte, Theater, Lesungen, usw.
Grösse: 123 m² | Anzahl Personen: 150 (stehend)
Ausstattung
- 150 Stühle, 35 Klapptische
- Raum mit Küche, Kücheninventar für 70 Personen
- Kombisteamer, Kochherd, Eismaschine, Kaffeemaschine
- Geschirrspüler, Kühlschrank, Kühlschubladen
- Bar-Theke
- WLAN
Zusatzmaterial
- DJ-Musikanlage: Plattenspieler, CD, Mischpult, Boxen Fr. 100.–
- kleine Musikanlage Fr. 50. –
- 2 Mikrofone, inkl. Stative Fr. 0.–
- Multimedia Screen Fr. 20.–
Mietpreise
- Normaler Tarif
Tag Fr. 800.– / pro Stunde Fr. 100.– - Non-Profit Tarif
Tag Fr. 500.– / pro Stunde Fr. 63.– - Reduzierter Tarif
Tag Fr. 335.– / pro Stunde Fr. 42.–
Bedingungen für Reduktionen können im Sekretariat erfragt werden
Obligatorische Reinigungspauschale: Fr. 210.– / Fr. 420.–
Je nach Art und Grösse des Anlasses, Ausnahmen können im Sekretariat erfragt werden.
Mietzeiten
- Montag bis Donnerstag: 10–24 Uhr
- Freitag und Samstag: 10–2 Uhr
- Sonntag: 10–24 Uhr
Auf-/Abbau ist Sache der Mietenden und in der Mietzeit zu erledigen.
Raum für Feste, Partys, Bewegungsangebote, Konzerte, Theater, Lesungen, usw.
Grösse 172 m² | Anzahl Personen 200 (stehend)
Ausstattung
- 150 Stühle, 35 Klapptische
- Raum mit Küche, Kücheninventar für 70 Personen
- Kombisteamer, Kochherd, Geschirrspüler
- Kühlschrank, Kühlschubladen, Eismaschine
- Kaffeemaschine
- Bar-Theke
- W-LAN
Zusatzmaterial
- DJ-Musikanlage: Plattenspieler, CD, Mischpult, Boxen Fr. 100.–
- kleine Musikanlage Fr. 50.–
- 2 Mikrofone, inkl. Stative Fr. 0.–
- Multimedia Screen Fr. 20.–
Mietpreise
- Normaler Tarif
Tag Fr. 1100.– / pro Stunde Fr. 138.– - Non-Profit Tarif
Tag Fr. 700.– / pro Stunde Fr. 88.– - Reduzierter Tarif
Tag Fr. 465.– / pro Stunde Fr. 59.–
Bedingungen für Reduktionen können im Sekretariat erfragt werden.
Obligatorische Reinigungspauschale: Fr. 210.– / Fr. 420.–
Je nach Art und Grösse des Anlasses, Ausnahmen können im Sekretariat erfragt werden.
Mietzeiten
- Montag bis Donnerstag: 10 bis 24 Uhr
- Freitag und Samstag: 10 bis 2 Uhr
- Sonntag: 10 bis 24 Uhr
Auf-/Abbau ist Sache der Mietenden und in der Mietzeit zu erledigen.
Sitzungsraum für Tagungen, Kurse, Workshops usw.
Grösse 60 m² | Anzahl Personen 30
Ausstattung
- 7 Klapptische, 25 Stühle
- Flipchart, Whiteboard
- W-LAN
Zusatzmaterial: Multimedia Screen Fr. 20.–
Mietpreise
- Normaler/Non-Profit Tarif
Tag Fr. 220.– / pro Stunde Fr. 28.– - Reduzierter Tarif
Tag Fr. 145.– / Pro Stunde Fr. 19.–
Bedingungen für Reduktionen können im Sekretariat erfragt werden.
Mietzeiten
- Montag bis Sonntag: 8 bis 24 Uhr
Auf-/Abbau ist Sache der Mietenden und in der Mietzeit zu erledigen.
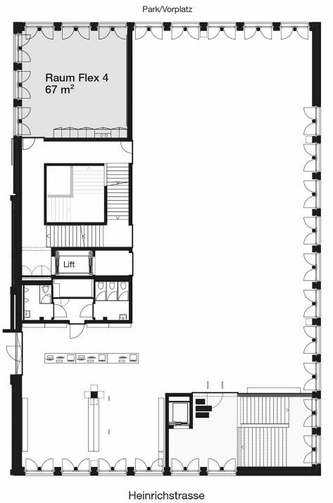
Bewegungsraum für Tanzkurse, Bewegungs-Angebote, Workshops usw.
Grösse: 67 m² | Anzahl Personen: 20
Ausstattung
- Spiegelwand
- Musikanlage
- Parkettboden
- 6 Hocker
- Garderobe im Untergeschoss vorhanden
- W-LAN
Mietpreise
- Normaler/Non-Profit Tarif
Tag Fr. 250.– / pro Stunde Fr. 32.– - Reduzierter Tarif
Fr. 165.– / pro Stunde Fr. 21.–
Bedingungen für Reduktionen können im Sekretariat erfragt werden.
Mietzeiten
- Montag bis Sonntag 8 bis 24 Uhr
Auf-/Abbau ist Sache der Mietenden und in der Mietzeit zu erledigen.
Multifunktionsraum für Tanzkurse, Bewegungsangebote, Sitzungen, Tagungen, Kurse, Workshops, usw.
Grösse: 102 m² | Anzahl Personen: 30
Ausstattung
- 7 Klapptische, 28 Stühle
- Spiegelwand
- Parkettboden
- Flipchart, Whiteboard
- Garderobe
- W-LAN
Zusatzmaterial: Multimedia Screen Fr. 20.–
Mietpreise
- Normaler/Non-Profit Tarif
Tag Fr. 120.– / pro Stunde Fr. 15.– - Reduzierter Tarif
Tag Fr. 92.– / pro Stunde Fr. 13.–
Bedingungen für Reduktionen können im Sekretariat erfragt werden.
Mietzeiten:
- Montag bis Sonntag 8 bis 24 Uhr
Auf-/Abbau ist Sache der Mietenden und in der Mietzeit zu erledigen.
Die Darstellung der virtuellen Rundgängen kann abweichen.
Falls Sie einen Raum regelmässig mieten möchten, rufen Sie uns bitte an.
Öffnungszeiten Sekretariat: Montag bis Donnerstag, 13 bis 18 Uhr.
Kann ich die Räume vorab besichtigen?
Ja, einen Besichtigungstermin können Sie mit uns vereinbaren.
Darf ich vor der Mietzeit, z.B. bereits am Vorabend, in den Raum?
Nein, der Raum steht Ihnen nur während der vertraglich vereinbarten Mietzeit zur Verfügung.
Darf ich vor Mietbeginn Ware wie Sitzungsunterlagen, Instrumente oder Catering im Raum deponieren?
Nein, dies ist wegen anderer Vermietungen leider nicht möglich.
Können wir bei Ihnen Catering und Getränke bestellen?
Nein, das gehört nicht zu unseren Dienstleistungen.
Wann und wo erhalte ich den Schlüssel?
Alle Angaben zur Schlüsselübergabe finden Sie im Mietvertrag.
Stehen Parkplätze zur Verfügung?
Für die Räume Flex 1&2 steht 1 Parkplatz zur Verfügung.
Darf ich mein Auto vor dem Quartierzentrum abstellen?
Infos dazu erhalten Sie bei Vertragsabschluss
Wie muss ich den Raum hinterlassen?
Wir bitten Sie, den Raum so zu hinterlassen, dass er anschliessend wieder genutzt werden kann. Die nötigen Putzutensilien finden Sie im Raum.
Kann ich den Raum auch erst am Tag danach reinigen?
Nein, wir bitten Sie, den Raum bis zum Ende der Mietzeit aufzuräumen und zu putzen.
Besteht die Möglichkeit, den Raum von einem Reinigungsinstitut aufräumen und putzen zu lassen?
Ja, dies je nach Raum und Veranstaltung sogar obligatorisch. Wir arbeiten mit einem Reinigungsinstitut zusammen, weitere Infos dazu erhalten Sie bei Vertragsabschluss.
Erhalte ich technische Unterstützung, wenn ich die Musikanlage, den Beamer etc. miete?
Grundsätzlich nicht, bei Unsicherheiten können Sie aber gerne vor Ihrer Veranstaltung dafür einen Termin bei uns vereinbaren
Darf ich draussen ein Zelt aufstellen?
Nein, das Aufstellen von Mobiliar jeglicher Art ist verboten.
Komme ich wieder in den Raum, nachdem ich den Schlüssel eingeworfen habe?
Nein, sollten Sie noch etwas im Raum vergessen haben, müssen Sie sich bis zur nächsten Sekretariatsöffnung gedulden.
Wie läuft der Zahlungsprozess ab?
Nach der Veranstaltung erhalten Sie eine Rechnung per Post oder E-Mail.
Ist der Raum rollstuhlgängig und hat es einen Lift?
Ja, das ganze Gebäude ist rollstuhlgängig.
Hafte ich selbst für Schäden an der Infrastruktur (z.B. Technik oder Geschirr) die während meiner Mietdauer entstehen?
Ja, Schäden werden Ihnen in Rechnung gestellt.
- Es sind keine Behindertenparkplätze verfügbar.
- Es sind keine Behindertentoiletten verfügbar.