Bist du ein*e Anbieter*in von Dienstleistungen im Bereich der Kreislaufwirtschaft? Zum Beispiel für Reparatur-, Ausleih- oder Sharing-Services? Verkaufst du nachhaltige Produkte oder hast ein anderes kreislauffähiges Angebot? Dann bist du im Josy goldrichtig.
Die Gewerbeflächen des Josys werden gratis vermietet (ausser Nebenkosten), um nachhaltige Geschäftsmodelle und neue Konsumgewohnheiten zu fördern.
Das Angebot von ERZ konzentriert sich besonders auf das Thema Wiederverwendung: Menschen können Gegenstände bringen und mitnehmen. Für alles andere suchen wir laufend innovative Partner*innen und vermieten dafür die folgenden Räume.
Flächen und Infrastruktur

Beschreibung
In diesem Gebäude befindet sich unser eigenes Weitergabe-Angebot von ERZ. Hier können gut erhaltene Gegenstände abgegeben und gratis mitgenommen.
Für Mieter*innen steht eine Ladenfläche zur Verfügung, die räumlich von unserem Angebot getrennt ist. So sind individuelle Gestaltungen und Öffnungszeiten möglich.
Mietdauer
Mindestens drei Monate, maximal ein Jahr
Fläche
61.6 m2
Infrastruktur
Stromanschluss
Wasseranschluss

Beschreibung
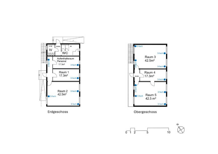
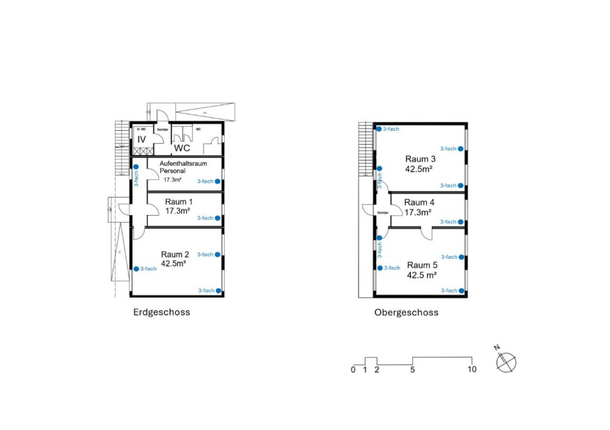
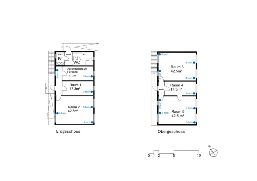
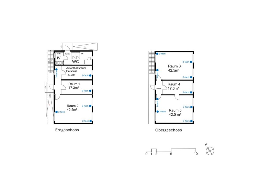
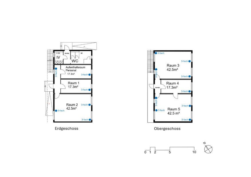
Im Container mit rustikalem, industriellem Charme im Erdgeschoss (EG) werden zwei Räume einzeln vermietet. Diese Flächen sind optimal für Dienstleistungen und Angebote, die etwas weniger Platz benötigen. Dank grossen Fenstern sind die Räume angenehm hell.
Sanitäranlagen für Mitarbeitende und Besucher*innen sowie ein Aufenthaltsraum für Personal befinden sich ebenfalls direkt in den Containern.
Mietdauer
Mindestens drei Monate, maximal ein Jahr
Fläche
Raum 1: 17.7m2
Infrastruktur
Raum 1: Stromanschluss

Beschreibung
Im Container mit rustikalem, industriellem Charme im Erdgeschoss (EG) werden zwei Räume einzeln vermietet. Diese Fläche ist optimal für Dienstleistungen und Angebote, die etwas weniger Platz benötigen. Dank grossen Fenstern sind die Räume angenehm hell.
Sanitäranlagen für Mitarbeitende und Besucher*innen sowie ein Aufenthaltsraum für Personal befinden sich ebenfalls direkt in den Containern.
Mietdauer
Mindestens drei Monate, maximal ein Jahr
Fläche
Raum 2: 42.4m2
Infrastruktur
Raum 2: Stromanschluss

Beschreibung
Im Obergeschoss (OG) der Container befinden sich drei weitere Räume, die jeweils einzeln vermietet werden. Zusätzlich planen wir in den Containern eine Fläche für Wissensvermittlung zur Kreislaufwirtschaft bereitzustellen. So kann sich die Bevölkerung über die Sinnhaftigkeit des Josys informieren.
Mietdauer
Mindestens drei Monate, maximal ein Jahr
Fläche
Raum 3: 43.5 m2
Infrastruktur
Stromanschluss

Beschreibung
Im Obergeschoss (OG) der Container befinden sich drei weitere Räume, die jeweils einzeln vermietet werden. Hier ist sogar eine Kombination von Raum 4 und 5 möglich. Zusätzlich planen wir in den Containern eine Fläche für Wissensvermittlung zur Kreislaufwirtschaft bereitzustellen. So kann sich die Bevölkerung über die Sinnhaftigkeit des Josys informieren.
Mietdauer
Mindestens drei Monate, maximal ein Jahr
Fläche
Raum 4: 17.7 m2
Infrastruktur
Stromanschluss

Beschreibung
Im Obergeschoss (OG) der Container befinden sich drei weitere Räume, die jeweils einzeln vermietet werden. Hier ist sogar eine Kombination von Raum 4 und 5 möglich. Zusätzlich planen wir in den Containern eine Fläche für Wissensvermittlung zur Kreislaufwirtschaft bereitzustellen. So kann sich die Bevölkerung über die Sinnhaftigkeit des Josys informieren.
Mietdauer
Mindestens drei Monate, maximal ein Jahr
Fläche
Raum 5: 43.5 m2
Infrastruktur
Stromanschluss
Download
Kontaktperson
Projektleiter Kreislaufwirtschaft